logo 

b  y  d  l  e  n  í

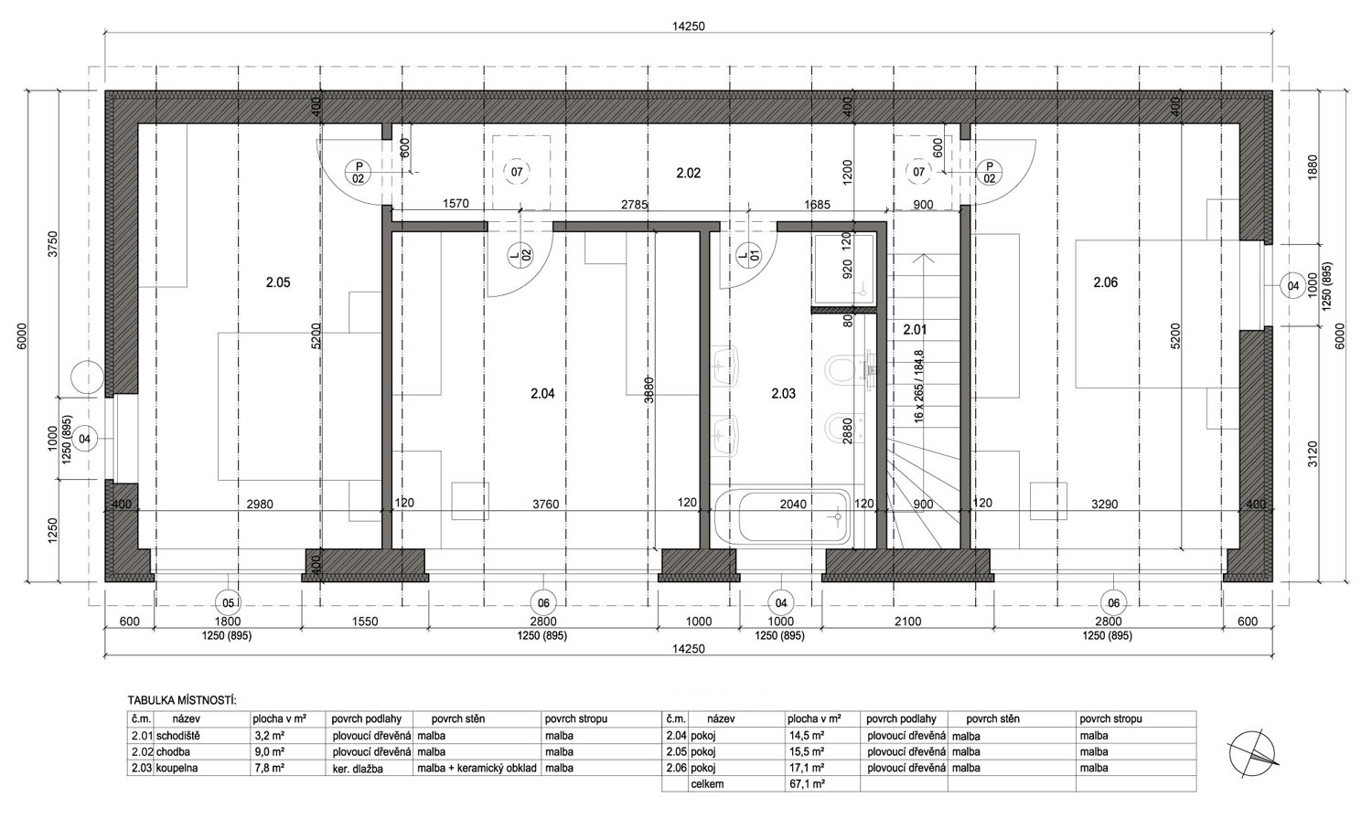
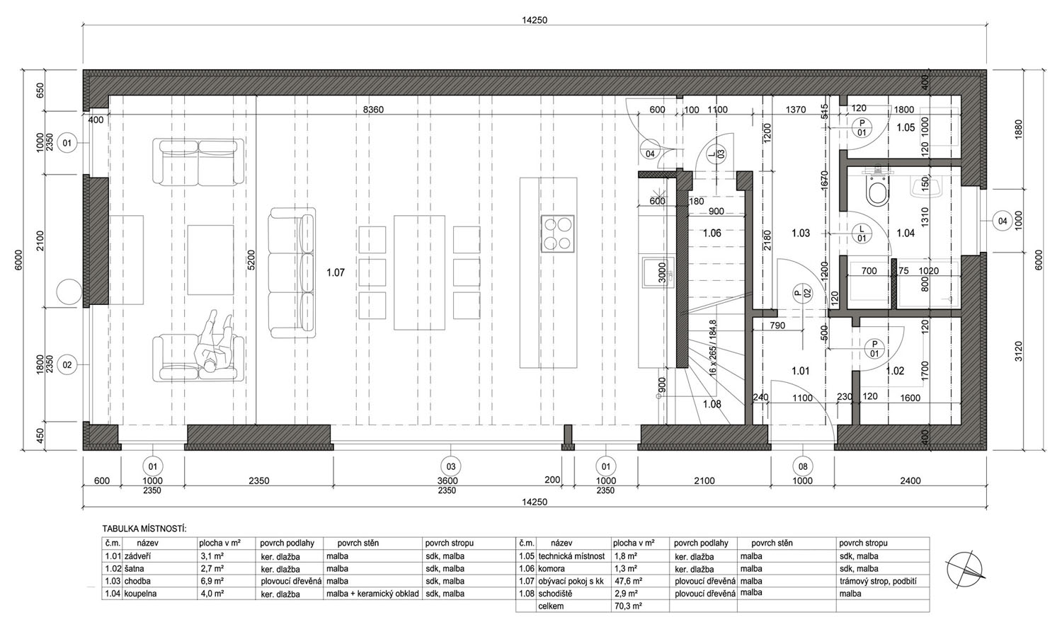
LUŽEC - novostavba rodinného domu. autor: Marta Vlčková, projekt 2012, realizace 2013/dokončuje se interiér

           

KRALOVICE - novostavba nárožního 4 podlažního bytového domu s obchody v přízemí a fitnes v suterenu.

autoři: Marta Vlčková, Michal Bureš, projekt 2010, realizace je ve stadiu spodní stavby

           

ČERNOŠICE - novostavba rodinného domu. autor: Michal Bureš, projekt 2009, realizace 2010/dosud

     

ŠTIŘÍN - studie zástavby řadových rodinných domů při golfovém hřišti ve Štiříně. autoři: Václav Mudra, Michal Bureš, Libor Čtrnáctý, projekt 2010, nerealizováno

        

 

KŘESÍN - studie přístavby k rodinnému domu se třemi bytovými jednotkami. autor: Marta Vlčková, projekt 2006, nerealizováno

     

 

RD VTELNO U MOSTU - studie novostavby rodinného domu. autor: Marta Vlčková, projekt 2008, nerealizováno

        

 

TYPOVÝ RD - studie typového rodinného domu. autor: Marta Vlčková, projekt 2010, nerealizováno